许昌美宜家建筑科技有限公司,是一家垂直类乡村自建房服务平台。通过互联网+技术优化传统的服务模式,为用
  • 首页
  • 别墅设计
  • 爆款别墅一口价全包套餐方案
  • 工法样板图解
  • 附近门店
  • 加盟合作
  • 联系我们
  • 财务管理
  • 一键报价
登录/注册
  1. 首页
  2. 别墅设计
  3. 正文

襄县袁总二层14*17——MYJSJ-0024

别墅设计
  • 详情介绍
  • 常见问题

面宽:14m 占地面积:200㎡
进深:17m 建筑面积:375㎡
层数:二层 结构:砖混
风格:合院 图纸编号:MYJSJ-0024

效果图

ScreenShot_2025-09-29_105715_158

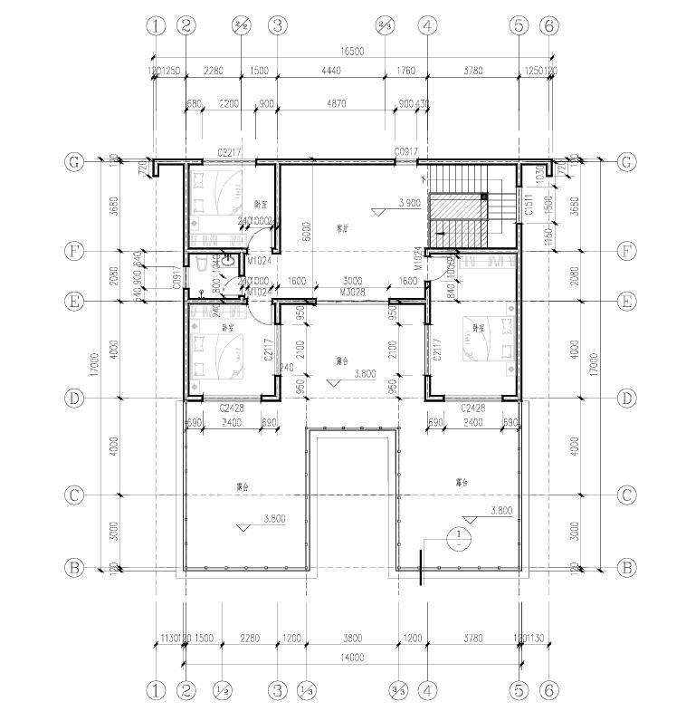
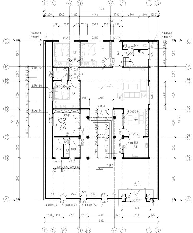
平面图(楼层顺序排列)

1

2

点击立即电话咨询(获取免费图纸)
声明:本站所有产品,如无特殊说明或标注, 均为许昌美宜家建筑科技有限公司 原创发布。任何个人或组织,在未征得本站同意时,禁止复制、盗用、采集、发布本站内容到任何网站、书籍等各类媒体平台。如若本站内容侵犯了原著者的合法权益,可联系我们进行处理。
许昌美宜家建筑科技有限公司,是一家垂直类乡村自建房服务平台。通过互联网+技术优化传统的服务模式,为用
许昌美宜家建筑科技有限公司
分享
  1. 所有的项目图纸是否免费?
    本站所有的图纸资源都是免费,资源版权属于许昌美宜家建筑科技有限公司 所有,这里所提供资源均只能用于参考,请勿直接商用。若由于商用引起版权纠纷,一切责任均由使用者承担。
  2. 如何获取全套图纸?
    联系门店或者客户经理,如有实际需求,客户经理可以将整套图纸给到您。
上一篇
禹州郭总二层15.5*9.5——MYJSJ-0023
下一篇
沈丘范总二层11*9——MYJSJ-0025

相关文章

别墅设计

沈丘赵总三层14*9——MYJSJ-0027

别墅设计

沈丘黄总三层11.5*11.5——MYJSJ-0026

别墅设计

沈丘范总二层11*9——MYJSJ-0025

别墅设计

禹州郭总二层15.5*9.5——MYJSJ-0023

别墅设计

禹州尹总二层12.9*10——MYJSJ-0022

别墅设计

襄县常总二层13.35*8.1——MYJSJ-0021

别墅设计

扶沟王总三层11.6*11.2——MYJSJ-0020

别墅设计

扶沟张总二层15.6*9.6——MYJSJ-0019

    许昌美宜家建筑科技有限公司,是一家垂直类乡村自建房服务平台。通过互联网+技术优化传统的服务模式,为用

    许昌美宜家建筑科技有限公司 ,是一家垂直类乡村自建房服务平台。通过互联网+技术优化传统的服务模式,为用户提供专业团队(自建房、别墅、民宿、园林景观、家庭装修)设计与施工,旧房改造、软装布置、家庭维修、建筑材料、物业管理和家政服务等。

    快速导航

    • 别墅设计
    • 加盟合作
    • 联系我们

    关于本站

    • 联系我们

    联系我们

    如有任何问题可与我们在线联系,扫码添加我们的官方微信。
    Copyright © 2025 许昌美宜家建筑科技有限公司 版权所有
    备案号:豫ICP备2025142705号
    • 首页
    • 别墅案例
    • 主推爆款
    • 工法图解
    • 一键报价
    • 附近门店
    • 首页
    • 别墅案例
    • 主推爆款
    • 工法图解
    • 一键报价
    https://www.myjjs.com/uploadfile/202509/129122c3b3ec41d.png