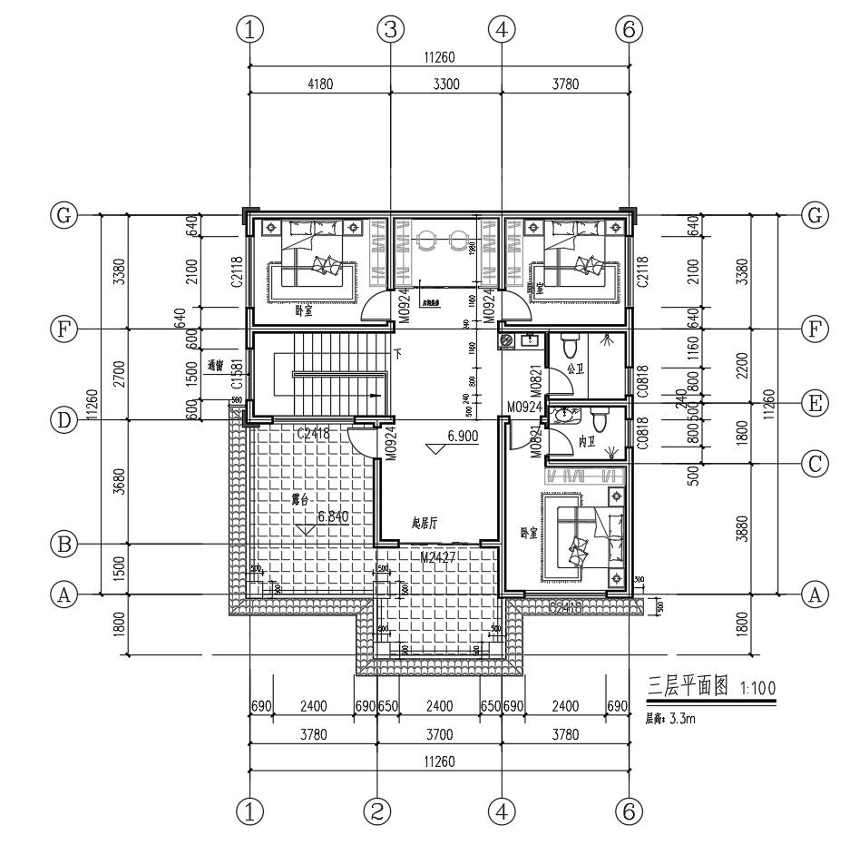
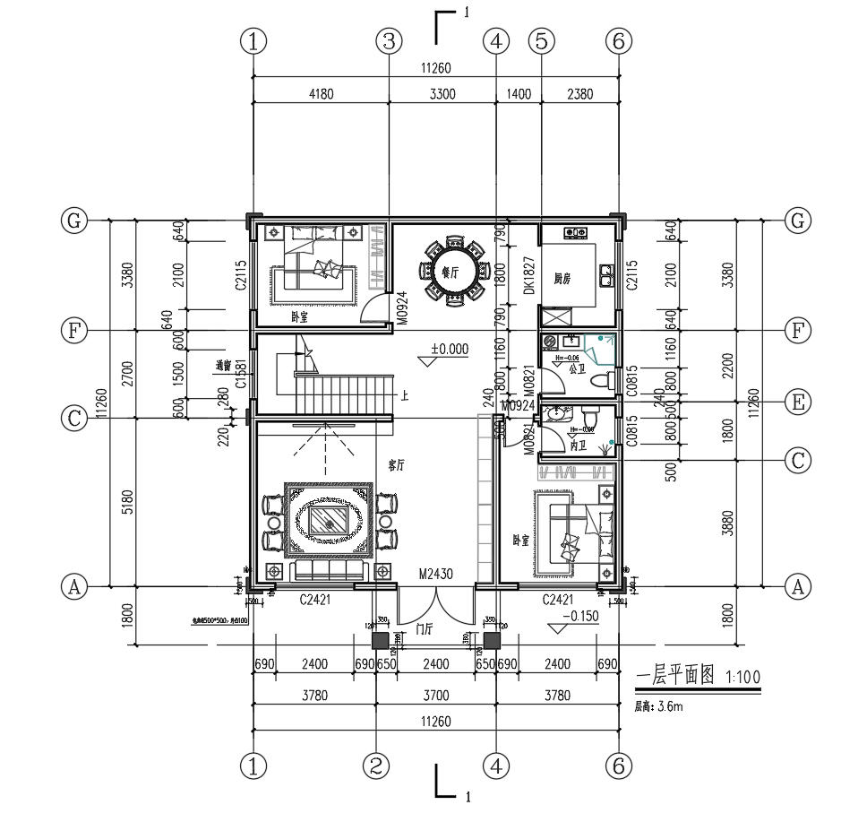
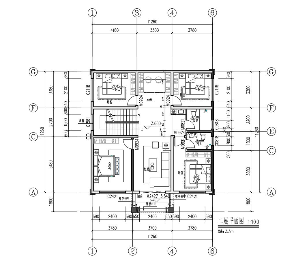
面宽:11.5m | 占地面积:200㎡ |
进深:11.5m | 建筑面积:408㎡ |
层数:三层 | 结构:砖混 |
风格:新中式 | 图纸编号:MYJSJ-0026 |
沈丘黄总三层11.5*11.5——MYJSJ-0026
声明:本站所有产品,如无特殊说明或标注,
均为许昌美宜家建筑科技有限公司 原创发布。任何个人或组织,在未征得本站同意时,禁止复制、盗用、采集、发布本站内容到任何网站、书籍等各类媒体平台。如若本站内容侵犯了原著者的合法权益,可联系我们进行处理。
-
所有的项目图纸是否免费?本站所有的图纸资源都是免费,资源版权属于许昌美宜家建筑科技有限公司 所有,这里所提供资源均只能用于参考,请勿直接商用。若由于商用引起版权纠纷,一切责任均由使用者承担。
-
如何获取全套图纸?联系门店或者客户经理,如有实际需求,客户经理可以将整套图纸给到您。